PRESTON BISSETT, BUCKINGHAM

The site is located in Preston Bissett village in Buckinghamshire about four miles south south-west of Buckingham, six miles north east of Bicester in Oxfordshire.

 

 

DESIGN & PROJECT MANAGEMENT: EK DESIGN STUDIO

CLIENT: PRIVATE

PROPOSAL

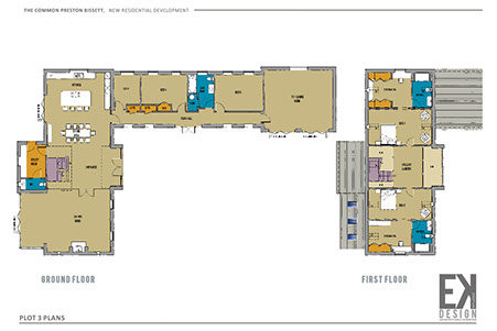
The proposal seeks to erect 3 detached dwellings to be constructed to modern standards of design and sustainability to accord with current building regulations.

DESIGN PRINCIPLES

The design principles for the proposed works to the dwellings will follow the current National Planning Policy Framework issued by DCLG.

All content © EK Design Studio 2021. All rights reserved.